Kích Thước Lavabo Bồn Rửa Mặt Theo Tiêu Chuẩn Quốc Tế
Bạn đang muốn tham khảo qua các kích thước của Lavabo để có thể thiết kế vị trí ống thoát và cấp nước một cách phù hợp. Hiện nay có vô số hãng sản xuất lavabo, mỗi loại sẽ có những kích thước khác nhau tuy nhiên độ chênh lệch này không đáng kể.
Kích thước Lavabo hay chậu rửa mặt phổ biến nhất hiện nay như Lavabo đặt bàn, để âm bàn, lavabo treo tường, vuông hoặc chữ nhật của các thương hiệu nổi bật hiện nay sẽ được cập nhật chi tiết trong bài viết này.
Nếu quan tâm, các bạn hãy tham khảo các bản kích thước dưới đây để lựa chọn cho mình những dòng sản phẩm Lavabo tốt nhất với kích thước phù hợp cho ngôi nhà của mình nhất nhé!
Kích Thước Lavabo Cụ Thể? Tại Sao Phải Quan Tâm Kích Thước Lavabo
Lavabo chính xác là bồn rửa mặt hay chậu rửa mặt nhà bạn. Đây là một thiết bị thông dụng trong các phòng tắm và nhà vệ sinh hiện đại. Khi có nhu cầu đặt mua Lavabo, tiêu chí kích thước luôn được quan tâm hàng đầu.
Vậy kích thước Lavabo cụ thể là gì? Đó chính xác là các thông số kỹ thuật theo tiêu chuẩn của từng loại sản phẩm, chúng được thể hiện bằng nhiều chiều trên các bản vẽ kỹ thuật.
Sở dĩ, việc xác định kích thước của chúng là rất quan trọng bởi vì thông qua kích thước được xác định đó sẽ dễ dàng chọn được một sản phẩm phù hợp với diện tích muốn lắp. Hỗ trợ thi công lắp đặt được nhanh và chính xác.
Thuận tiện trong khi sử dụng, phù hợp với nhiều đối tượng khách hàng khác nhau.Tiết kiệm chi phí, tránh phải tốn thời gian khi đổi trả. Đảm bảo thẩm mỹ cho ngôi nhà, thể hiện đẳng cấp của người sở hữu Lavabo.

Kích thước lavabo là gì?
Kích Thước Lavabo Tiêu Chuẩn Theo Từng Kiểu Dáng Và Thương Hiệu
Kích thước Lavabo treo tường
Đây là một loại lavabo rất phổ biến, được sử dụng nhiều cho các hộ gia đình phục vụ cho sinh hoạt
– Kích thước của lavabo (R x S x C): 500 x 430 x 190 (mm).
– Chiều cao ống gắn xả chờ âm tường được tính từ sàn hoàn thiện tới tim lỗ co răng trong ước tính 510 mm
– Chiều cao lắp ống cấp nước nóng lạnh âm tường tính từ sàn lên đến tim lỗ co đồng d21 và ren ngoài là 620 mm.
– Các Khoảng cách A trong hình là tùy từng mod khác nhau mà có khoảng cách khác nhau.

Sơ đồ kỹ thuật kích thước bồn cầu treo tường
Kích thước Lavabo âm bàn
– Đây là loại lavabo được đặt âm vào mặt bàn đá, thường là mặt đá granite chiều rộng tối thiểu là 600, nếu trong không gian rộng thì đặt loại này khá hợp mắt vì chúng giấu được ống xả, có thể lắp thêm tủ bên dưới để đựng đồ.
– Kích thước lavabo âm bàn (R x S x C) là 580 x 480 x 200 (mm).
– Chiều cao ống xả để âm tường tính từ sàn hoàn thiện cho tới tim lỗ co răng trong khoảng 500 mm
– Chiều cao lắp ống cấp nước nóng lạnh để âm tường tính từ sàn hoàn thiện lên tới tim lỗ co đồng là d = 21, trong đó răn ngoài là 620 mm.
– Khoảng cách A là tùy model mà có khoảng cách khác nhau.

Kích thước lavabo âm bàn
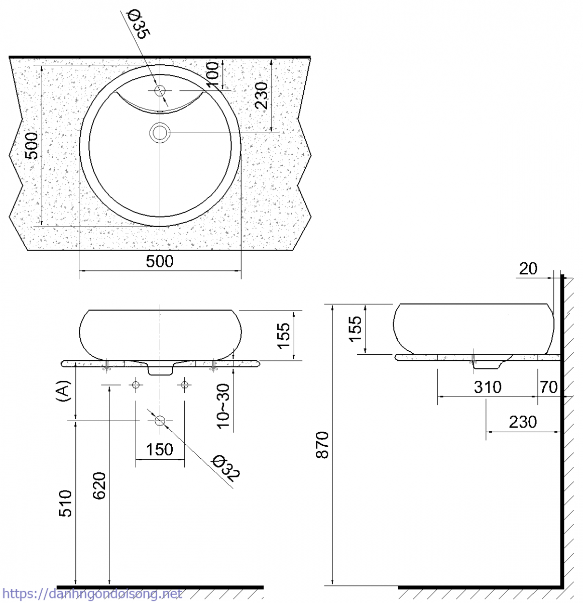
Kích thước Lavabo đặt trên mặt bàn
– Đây là loại lavabo dập nổi trên các mặt bàn đá granite, thường có hình tròn hoặc vuông, khá phổ biến trong các hàng quán hiện nay.
– Kích thước loại này là (R x S x C) : 500 x 500 x 155 (mm).
– Chiều cao từ nơi gắn ống xả âm tường tính từ sàn hoàn thiện tới tim lỗ co là d34 và ren ngoài là 510 mm
– Chiều cao để gắn ống cấp nước nóng lạnh và chờ âm tường được tính từ sàn hoàn thiện đến tim lỗ co đồng là d = 21 và răn ngoài là 620 mm.
– Khoảng cách A là tùy từng model mà có khoảng cách khác nhau.

Kích thước của lavabo đặt trên bàn
>> Xem thêm: Cách làm thông bồn cầu nghẹt hiệu quả nhất
Kích thước chậu rửa mặt kiểu góc
– Đây là một dạng của loại Lavabo treo tường, tuy nhiên kích thước của Lavabo chậu rửa mặt kiểu góc thường nhỏ hơn
– Chiều rộng: 360mm
– Chiều sâu: 360mm
– Chiều cao: 145mm
– Tùy từng không gian và những mục đích sử dụng khác nhau mà các thông số kích thước chậu rửa mặt này cũng khác nhau để đáp ứng nhu cầu tối đa của người dùng.

Kích thước bồn rửa mặt kiểu góc
Kích thước Lavabo góc nhỏ nhất
Hiện nay bồn rửa mặt góc loại này rất phổ biến và đa dạng các kích thước khác nhau theo nhiều thương hiệu cụ thể. Chính vì vậy, để xác định chính xác kích thước Lavabo có góc nhỏ nhất gặp khó khăn.
Kích thước Lavabo vuông
Nhắc đến Lavabo thiết kế theo hình vuông thì dòng sản phẩm của hãng Caesar luôn nhận được sự quan tâm nhiều nhất bởi vì kiểu dáng mới lạ, lại tinh tế và rất bắt mắt.
– Kích thước Lavabo vuông (R x S x C): 450x450x165 mm

Kích thước bồn rửa mặt kiểu vuông
Kích thước Lavabo trẻ em
– Chắc chắn, kích thước của Lavabo cho trẻ em phải có thông số rất nhỏ hơn so với kích thước bình thường, có vậy mới đem lại sự thuận tiện cần thiết cho các bé.
– Chiều rộng là: 360mm
– Chiều sâu là: 360mm
– Và chiều cao: 140mm

Kích thước lavabo cho trẻ em
Kích thước Lavabo loại nhỏ
– Kích thước loại nhỏ này sẽ phù hợp với những thiết kế của phòng tắm hoặc phòng vệ sinh có không gian eo hẹp. Nếu:
– Chiều rộng: < 500mm
– Chiều sâu: < 300mm
– Chiều cao: < 200mm.
Thì có thể coi là Lavabo loại nhỏ. Chúng không chiếm nhiều diện tích trong khi vẫn đáp ứng được tính thẩm mỹ, sự tiện lợi và sự hài lòng cho người sử dụng.

Bồn rửa mặt kiểu nhỏ
Kích thước chậu rửa mặt mini
– Kích thước Lavabo mini khá nhỏ, chúng được thiết kế xinh xắn và tiện lợi, thậm chí kích thước có loại chỉ bằng tô loại lớn. R x S x C = 375 x 375 x 150 mm

Kích thước lavabo mini
Kích thước Lavabo L2014 Caesar là nhỏ nhất
Sau khi đã tham khảo nhiều loại bồn rửa mặt từ rất nhiều loại thương hiệu khác nhau trên thị trường.
Chúng tôi có một phát hiện rằng phát hiện rằng, sản phẩm L2014 Caesar đang sở hữu kích thước siêu nhỏ nhất hiện nay. R x S x C = 350 x 350 x 145 mm

Kích thước của lavabo nhỏ nhất hiện nay
Kích thước Lavabo đôi
Lavabo đôi nghĩa là lớn gấp đôi so với những chậu rửa mặt thông thường. Phù hợp hơn với không gian rộng lớn và mang vẻ sang trọng. R x S x C = 1210 x 475 x 180 mm

Tỉ lệ kích thước của lavabo đôi
Kích thước Lavabo hình chữ nhật
Loại này khá đa dạng và kích thước của chúng cũng không cố định, có thể tham khảo một kích thước mẫu như thế này. R x S x C = 500 x 450 x 155 mm
Kích thước Lavabo tròn
Lavabo tròn mang đến vẻ đẹp uyển chuyển và mềm mại, chính vè thế chúng được nhiều bà nội trợ tin dùng. R x S x C = 425 x 425 x 165 mm

Kích thước lavabo tròn
Kích thước Lavabo chân lửng
LHT300CR, LHT300CR, LHT300CM là những sản phẩm HOT của ToTo, nếu yêu thích Lavabo có chân lửng trẻ trung, lịch sự thì đây là lựa chọn cho bạn
R x S x C = 430 x 500 x 190 mm

Kích thước lavabo kiểu chân lửng
Kích thước Lavabo chân dài
Lavabo thông dụng nhất thường có chân dài hơn 500m còn nhỏ hơn 200mm đến 300mm được xem là dòng chân lửng.
R x S x C = 400 x 410 x 825 mm

Kích thước ống của lavabo kiểu chân dài
Kích thước Lavabo Inax
Kích thước tiêu chuẩn của bồn rửa mặt Inax còn phụ thuộc vào kiểu thiết kế của các dòng sản phẩm. Vì vậy, tiêu chuẩn kích thước Lavabo góc Inax treo tường sẽ có nhiều sự khác biệt.
– Dòng Inax nhỏ có kích thước Lavabo treo tường: R x S x C = 400 x 320 x 145 mm hoặc R x S x C = 430 x 495 x 180 mm
– Kích Lavabo chậu rửa mặt Inax âm bàn: R x S x C = 400 x 380 x 170 mm hoặc R x S x C = 600 x 550 x 210 mm
– Kích thước chậu rửa mặt Inax đặt bàn: R x S x C = 400 x 440 x 115 mm hoặc R x S x C = 600 x 450 x 210 mm

Kích thước ống dẫn của lavabo Inax
>> Xem thêm: Các bước vệ sinh bồn nước đúng cách
Kích thước Lavabo ToTo
Kích thước tiêu chuẩn của chậu rửa mặt ToTo cũng quan tâm đặc biệt từ người dùng, đây là thương hiệu nổi tiếng tại Nhật Bản, được đánh giá vì chất lượng, đẳng cấp và cả trong từng đường nét thiết kế.
– Kích thước Lavabo treo tường tiêu chuẩn: R x S x C = 430 x 350 x 190 mm hoặc R x S x C = 530 x 500 x 220 mm

Một ví dụ kích thước cho lavabo ToTo
Kích thước chậu rửa mặt Viglacera
– Kích thước Lavabo Viglacera tương đối đa dạng, mỗi dòng sản phẩm sẽ mang những kiểu dáng thiết kế khá khác nhau. Thế nhưng, phổ biến nhất là các loại có thông số kích thước sau đây: R x S x C = 560 x 475 x 203 mm

Kích thước mẫu lavabo Viglacera
Kích thước Lavabo Thiên Thanh
Lavabo Thiên Thanh chưa phải là một thương hiệu có tiếng như ToTo, Viglacera Hay Inax, nhưng đây cũng là sản phẩm có chất lượng và đáng sử dụng, giá thành tốt, phù hợp với đa số người tiêu dùng Việt Nam.
R x S x C = 530 x 435 x 210 mm

Kích thước lavabo hãng Thiên Thanh
Kích thước Lavabo L282
– Kích thước tham khảo là: R x S x C = 400 x 410 x 180 mm

Kích thước lavabo chuẩn L282
Kích thước Lavabo L-280V
Đây là hàng treo tường được nhiều người tìm kiếm, phù hợp với những không gian không quá lớn. L-280V cũng mang thương hiệu của Inax. Ngoài ra chúng còn mang các kích thước tủ lavabo.
R x S x C = 400 x 322 x 150 mm

Kích thước lavabo chuẩn L280
Kích thước Lavabo L-283V
Dường như thương hiệu Inax đang rất HOT trên mảng thị trường hiện nay, L-283V cũng vậy. Và đây là kích thước chuẩn của dòng này.
R x S x C = 429 x 390 x 162 mm

Kích thước lavabo chuẩn L283
Tiêu chuẩn kích thước lắp đặt chậu rửa mặt
Kích thước là một yếu tố rất quan trọng trong việc lắp đặt chậu rửa mặt, để tạo nên sự cân đối cho cả căn phòng nhưng đồng thời phải đáp ứng tốt về công năng và hiệu năng. Về kích thước tiêu chuẩn khoảng 800 đến 850 cm.
Ngoài ra, để đảm bảo sở hữu một thiết kế lavabo đẹp mắt, đồng thời đảm bảo độ bền trong suốt thời gian sử dụng thì nên tin tưởng sản phẩm lavabo đến từ các thương hiệu uy tín như Inax, Toto, Viglacera, Caesar…
Hãy lựa chọn một mẫu lavabo cho riêng ngôi nhà của mình sao cho phù hợp với diện tích và đảm bảo thuận tiện bạn nhé, Vì kích thước ngoài thị trường rất đa dạng và đừng quên nên chọn những mẫu mới để ngôi nhà của mình được sang trọng hơn.
Một số thương hiệu Lavabo

Kinh nghiệm lựa chọn kích thước lavabo cho phù hợp
Thương hiệu ToTo
Đây là thương hiệu đến từ Nhật Bản, được đánh rất giá cao về chất lượng trong các dòng sản phẩm cao cấp và thân thiện môi trường. Tuy nhiên, nhược điểm của Toto là mẫu mã không quá đa dạng và giá thành cao, loại này thích hợp hơn với khách hàng có thu nhập cao.
Giá cả tham khảo: 4.000.000 – 290.000.000 đồng.
Thương hiệu Inax
Đây là thương hiệu của tập đoàn Lixil, Nhật Bản – là đơn vị tiên phong ngành sản xuất thiết bị vệ sinh, gạch ốp lát có chất lượng cao. So với Toto, Inax nhiều mẫu mã hơn nhưng giá thành cũng khá cao
Giá tham khảo: 6.000.000 – 15.000.000 đồng.

Cách bố trí tỉ lệ kích thước lavabo đúng chuẩn
Thương hiệu Viglacera
Đây là thương hiệu tại Việt Nam với mức giá thành cạnh tranh cho mọi phân khúc của thị trường. Tuy nhiên, thương hiệu lượng hàng hóa không được đồng đều, ít mẫu mã để khách hàng lựa chọn.
Mức giá tham khảo: 450.000 – 2.500.000 đồng.
Thương hiệu Caesar
Đây là thương hiệu của Đài Loan, giá cả phải chăng, mẫu mã đa dạng dễ thỏa mãn nhu cầu của nhiều khách hàng. Tuy nhiên, nếu không vững kiến thức về các dòng thiết bị vệ sinh sẽ rất dễ mua phải hàng giả, mua hàng dỏm với giá cao.
Mức giá tham khảo: 380.000 – 7.200.000 đồng.
Tag: Kích thước lavabo vuông, kích thước lavabo nhỏ, kích thước lavabo đặt bàn, kích thước lavabo âm bàn, kích thước lavabo treo tường, kích thước lavabo góc, kích thước lavabo tròn, kích thước tủ lavabo.



